| 価格(税込) | 4,080万円 | ||
|---|---|---|---|
| 所在地 | 大阪府八尾市八尾木3丁目 | ||
| アクセス | JR関西本線志紀駅徒歩15分 | ||
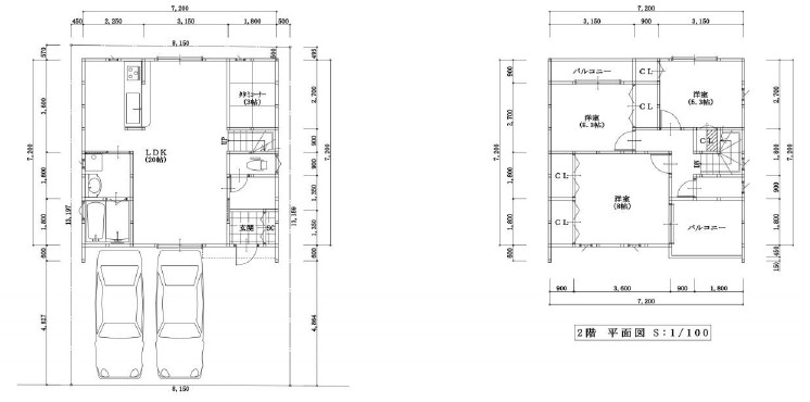
| 面積(平米) | 土地:107.41m² 建物:95.99m² | 間取り | 3LDK |
|---|---|---|---|
| 築年数 | - | 建物構造 | 木造 |
| 階数 | 2階建て | 駐車場 | 有 |
| 接道状況 |
一方 (北東 4.7m 公道に 8.1m 接する) |
||
| 建物現況 | 新築 | 引渡時期 | 即時 |
| 都市計画 | 市街化区域 | 用途地域 | 用途地域1:第一種住居 |
| 建蔽/容積率 | 建ぺい率1:60% 容積率1:200% | 取引態様 | 媒介 |
| セットバック | - | ||
| 土地権利 | 所有権 | 地代 | |
| 借地条件 | 借地期間 | ||
| 設備 | 駅まで平坦/2階建/LDK広さ20帖以上/電気/上水道公営/汚水下水道/都市ガス/全居室フローリング/クローゼット/シューズボックス/システムキッチン/カウンターキッチン/ガスコンロ/コンロ口数三口/グリル/給湯/浄水器/独立洗面台/シャンプードレッサー/追い焚き/シャワー/浴室に窓/バルコニー有/TVインターホン | ||
| 学区情報 | 幼稚園区: 小学校区:曙川小学校 中学校区:曙川南中学校 |
||
| 電話番号 | 072-920-7470 | ||
| 物件番号 | 1191 | 物件更新日 | 2025-12-06 |
| お借入条件を入力してください | |
|---|---|
| 借入希望金額 | 万円 |
| ご返済期間 | 年 |
| 利率(実質年率) | % |
| 毎月支払金額 |
|---|
|

※価格は物件の代金総額を表示しており、消費税が課税される場合は税込み価格です。
※敷地権利が定期借地権のものは、価格に権利金を含みます。
※建築条件付売地の価格に建物価格は含まれません。
※物件情報は、原則として情報更新日から14日以内に販売状況の確認をする予定です。
※完成予想図は、いずれも外構・植栽・外観等、実際のものとは多少異なることがあります。
※モデルルーム・モデルハウス・展示場の画像の場合、今回販売の物件と異なる場合があります。
※コンピュータグラフィックス画像の場合、実際とは多少異なる場合があります。
※販売戸数が複数の物件は、全ての住戸に該当しない項目もあります。
※完成後1年以上を経過した未入居物件が掲載される場合があります。
※物件価格は、変更された翌日から7営業日以内で表示されます。
※購入の前には、物件内容や契約条件について、ご自身で十分な確認をしていただくようにお願いいたします。
※売地(建築条件なし)で「建物プラン例」が表記してある時、そのプラン例は特定の建築請負会社によるもので、当該建築請負会社以外で建てた場合、同様のものが同価格で建てられるとは限りません。また、建築請負会社を特定するものではありません。
※建築条件売地の情報内に掲載されている建物プラン例は、土地購入者の参考設計プランの一例であって、プランの採用可否は任意です。
※建築条件付売地とは、その土地に建築する建物の建築請負契約が、一定期間内に成立することを条件として売買される土地のことをいいます。
建築請負契約成立に向けて設計プランを協議するため、土地購入者が自己の希望する建物の設計協議をするために必要な相当の期間の交渉期間が設定され、その期間内で希望を満たすプランが実現できたかどうかにより結論を出します。なお、この期間は概ね3ヶ月程度とされています。納得のいくプランが出来ず、建築請負契約が成立しない場合、土地売買契約は白紙に戻り、土地契約にかかった代金(土地代金、手付金など)は名目のいかんに関わらず、全て返却されます。