大阪府八尾市北木の本2丁目 中古一戸建て 880万円(JR関西本線/八尾)の物件情報

中古
一戸建て

■敷地面積約35.99坪

  • 3LDK以上
  • 80m²以上
  • 木造住宅
  • 2000万円以下
  • 空家
  • 2階建て
  • 建蔽率60%
  • 容積率200%
  • 一方接道
  • 道路幅1.7m
大阪府八尾市北木の本2丁目 中古一戸建て 880万円
前 次

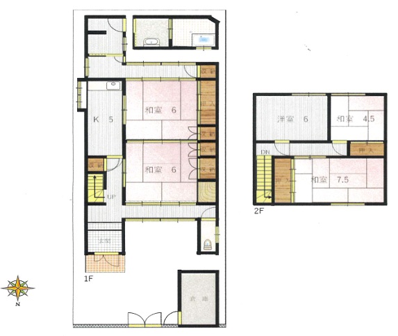
間取り
間取り

物件概要

価格(税込)880万円
所在地大阪府八尾市北木の本2丁目
アクセスJR関西本線八尾駅徒歩17分
面積(平米)土地:119m² 建物:109.95m²  間取り5K
築年数築60年 建物構造木造
階数2階建て 駐車場
接道状況 一方 (北 1.7m )
建物現況空家 引渡時期 相談
都市計画市街化区域 用途地域用途地域1:準工業
建蔽/容積率建ぺい率1:60% 容積率1:200% 取引態様媒介
セットバック-
土地権利所有権 地代
借地条件 借地期間
設備平坦地/駅まで平坦/2階建/和室/電気/上水道公営/汚水下水道/都市ガス/フローリング
学区情報 幼稚園区:
小学校区:龍華小学校
中学校区:龍華中学校
電話番号 072-920-7470
物件番号1139 物件更新日2025-09-25
情報公開日: 2025年11月13日  次回更新予定日: 2025年11月28日

ローンシミュレーション

お借入条件を入力してください
借入希望金額 万円
ご返済期間
利率(実質年率)
毎月支払金額

お問合わせ

お問合わせフォーム記入

ご希望・お問合わせ内容の入力

ご希望必須 お問合わせ内容任意

お客様情報の入力

お名前必須 電話番号必須
メールアドレス必須 メールアドレス(確認用)必須

※価格は物件の代金総額を表示しており、消費税が課税される場合は税込み価格です。
※敷地権利が定期借地権のものは、価格に権利金を含みます。
※建築条件付売地の価格に建物価格は含まれません。
※物件情報は、原則として情報更新日から14日以内に販売状況の確認をする予定です。
※完成予想図は、いずれも外構・植栽・外観等、実際のものとは多少異なることがあります。
※モデルルーム・モデルハウス・展示場の画像の場合、今回販売の物件と異なる場合があります。
※コンピュータグラフィックス画像の場合、実際とは多少異なる場合があります。
※販売戸数が複数の物件は、全ての住戸に該当しない項目もあります。
※完成後1年以上を経過した未入居物件が掲載される場合があります。
※物件価格は、変更された翌日から7営業日以内で表示されます。
※購入の前には、物件内容や契約条件について、ご自身で十分な確認をしていただくようにお願いいたします。
※売地(建築条件なし)で「建物プラン例」が表記してある時、そのプラン例は特定の建築請負会社によるもので、当該建築請負会社以外で建てた場合、同様のものが同価格で建てられるとは限りません。また、建築請負会社を特定するものではありません。
※建築条件売地の情報内に掲載されている建物プラン例は、土地購入者の参考設計プランの一例であって、プランの採用可否は任意です。
※建築条件付売地とは、その土地に建築する建物の建築請負契約が、一定期間内に成立することを条件として売買される土地のことをいいます。
建築請負契約成立に向けて設計プランを協議するため、土地購入者が自己の希望する建物の設計協議をするために必要な相当の期間の交渉期間が設定され、その期間内で希望を満たすプランが実現できたかどうかにより結論を出します。なお、この期間は概ね3ヶ月程度とされています。納得のいくプランが出来ず、建築請負契約が成立しない場合、土地売買契約は白紙に戻り、土地契約にかかった代金(土地代金、手付金など)は名目のいかんに関わらず、全て返却されます。