| 価格(税込) | 3,880万円 | ||
|---|---|---|---|
| 所在地 | 大阪府堺市南区赤坂台5丁 南区 赤坂台 2号棟 |
||
| アクセス | 泉北線光明池駅徒歩30分バス13分[赤坂台5丁]停歩3分 | ||
| アクセス2 | 泉北線栂・美木多駅徒歩28分 | ||
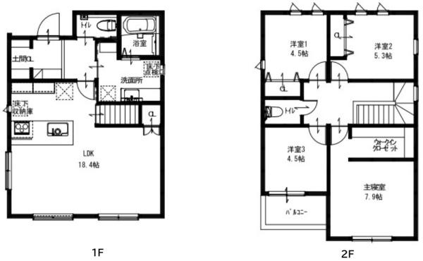
| 面積(平米) | 土地:140.07m² 建物:102.38m² | 間取り | 4LDK |
|---|---|---|---|
| 築年数 | 新築 | 建物構造 | 木造 |
| 階数 | 2階建て | 駐車場 | 有 |
| 接道状況 |
一方 (北 6.5m 公道) |
||
| 建物現況 | 建築中 | 引渡時期 | 相談 |
| 都市計画 | 市街化区域 | 用途地域 | 用途地域1:第一種低層住居専用 |
| 建蔽/容積率 | 建ぺい率1:40% 容積率1:80% | 取引態様 | 媒介 |
| セットバック | - | ||
| 土地権利 | 所有権 | 地代 | |
| 借地条件 | 借地期間 | ||
| 設備 | 長期優良住宅認定通知書有/耐震構造/建築確認完了検査済証有/緑豊かな住宅地/閑静な住宅地/大型タウン内/都市近郊/市街地が近い/前道6m以上/2階建/日当り良好/LDK広さ18帖以上/電気/上水道公営/汚水下水道/都市ガス/室内物干し/フローリング/全居室フローリング/クッションフロア/3台以上駐車可能/衣類乾燥機/収納スペース/クローゼット/ウォークインクローゼット/シューズボックス/シューズインクローゼット/床下収納/システムキッチン/カウンターキッチン/ガスコンロ/コンロ口数三口/グリル/食器洗乾燥機/独立洗面台/シャンプードレッサー/オートバス/シャワー/浴室に窓/トイレ2ヶ所/温水洗浄便座/バルコニー有/南面バルコニー/バルコニー・屋上に水栓あり/省エネルギー対策/フラット35・S適合証明書有/TVインターホン | ||
| 学区情報 | 幼稚園区: 小学校区:赤坂台小学校 中学校区:赤坂台中学校 |
||
| 電話番号 | 072-281-0701 | ||
| 物件番号 | c9158 | 物件更新日 | 2026-04-19 |
| 備考 | 建築確認番号:第BVJ-DIG26-10-0095号 | ||
| お借入条件を入力してください | |
|---|---|
| 借入希望金額 | 万円 |
| ご返済期間 | 年 |
| 利率(実質年率) | % |
| 毎月支払金額 |
|---|
|

※価格は物件の代金総額を表示しており、消費税が課税される場合は税込み価格です。
※敷地権利が定期借地権のものは、価格に権利金を含みます。
※建築条件付売地の価格に建物価格は含まれません。
※物件情報は、原則として情報更新日から14日以内に販売状況の確認をする予定です。
※完成予想図は、いずれも外構・植栽・外観等、実際のものとは多少異なることがあります。
※モデルルーム・モデルハウス・展示場の画像の場合、今回販売の物件と異なる場合があります。
※コンピュータグラフィックス画像の場合、実際とは多少異なる場合があります。
※販売戸数が複数の物件は、全ての住戸に該当しない項目もあります。
※完成後1年以上を経過した未入居物件が掲載される場合があります。
※物件価格は、変更された翌日から7営業日以内で表示されます。
※購入の前には、物件内容や契約条件について、ご自身で十分な確認をしていただくようにお願いいたします。
※売地(建築条件なし)で「建物プラン例」が表記してある時、そのプラン例は特定の建築請負会社によるもので、当該建築請負会社以外で建てた場合、同様のものが同価格で建てられるとは限りません。また、建築請負会社を特定するものではありません。
※建築条件売地の情報内に掲載されている建物プラン例は、土地購入者の参考設計プランの一例であって、プランの採用可否は任意です。
※建築条件付売地とは、その土地に建築する建物の建築請負契約が、一定期間内に成立することを条件として売買される土地のことをいいます。
建築請負契約成立に向けて設計プランを協議するため、土地購入者が自己の希望する建物の設計協議をするために必要な相当の期間の交渉期間が設定され、その期間内で希望を満たすプランが実現できたかどうかにより結論を出します。なお、この期間は概ね3ヶ月程度とされています。納得のいくプランが出来ず、建築請負契約が成立しない場合、土地売買契約は白紙に戻り、土地契約にかかった代金(土地代金、手付金など)は名目のいかんに関わらず、全て返却されます。